

(page revised 5 May 2023)
HOME page Main Mersey Gateway Penalties page
WARNING. IN FEBRUARY 2023 A HIGH COURT JUDGE REVERSED THE DECISIONS MADE BY ADJUDICATORS OVER THE PREVIOUS FIVE YEARS. HE RULED THAT THE ENFORCEMENT OF THE PENALTIES WAS LEGAL.
THIS HUMPTY DUMPTY DECISION MEANS THAT SOME OF OUR PREVIOUS ADVICE NO LONGER APPLIES. WE HAVE TRIED TO REFLECT THE NEW SITUATION BELOW AND IN OUR OTHER PAGES DEALING WITH THE PENALTIES
MERSEY GATEWAY & SILVER JUBILEE BRIDGE PENALTIES - STAGE 1 - MAKE A REPRESENTATION TO MERSEYFLOW
This page describes the first part of the process which is when you receive a PCN (Penalty Charge Notice) from Merseyflow.
Background
Allowed grounds
How to do it using the online system
How to do it in "writing"
What happens next?
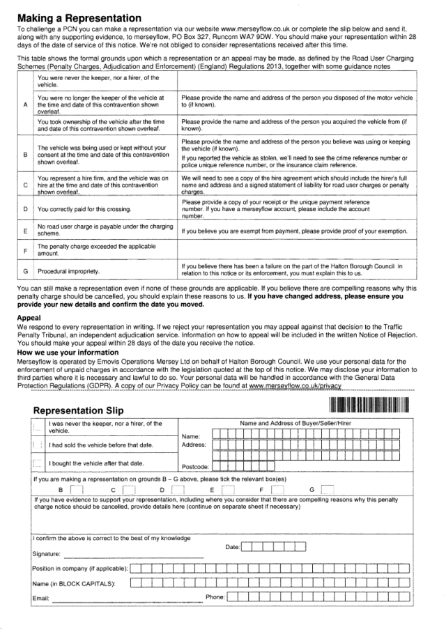
What a PCN looks like
Background
We believe that the tolls and enforcement action are unlawful in numerous ways. But the politicians, authorities, firms, courts and police do not care, so you have to respond as if what they are doing is lawful.
If you intend to pay the toll then we suggest that you do so even if it is past the deadline. If it is only slightly late, this may mean that you do not get a Penalty Charge Notice. Even if you still get a PCN, it may increase the chances of it being cancelled.
It seems to be best if you make the payment by phone rather than by some other means- the phone number is 01928 878 878 (though only available 8am-8pm Monday-Friday and 9am-6pm Saturday, Sunday and bank holidays).
There is no time limit for the issue of a Penalty Charge Notice, but they are usually issued about ten days after the date of the alleged unpaid crossing. The issue date is on the top of the PCN. You have 28 days to EITHER pay the penalty charge and any unpaid toll (there may be no unpaid toll as the PCN may have been issued because they say that you paid the toll late) AND / OR to make a 'representation' to Merseyflow.
The penalty charge is £40. To encourage you not to make a challenge, under the national regulations the penalty is reduced to 50% if you pay within 14 days, i.e. in the case of the two bridges you pay £20.
Note that both the 14 days and the 28 days run from the date of service of the PCN, which is deemed to be two working days after the date of issue, unless you can prove that you received it later - this might be relevant if you were away from home for any reason.
If you are going to make a representation then we strongly recommend that you do it as soon as you can after you receive the Penalty Charge Notice. Under the national regulations the clock is 'stopped' while Merseyflow consider your representation. Because of this we used to suggest that you did not pay the penalty till after your representation had been considered. But as the representation is almost certain to be rejected, and as any appeal to the Traffic Penalty Tribunal is also likley to be rejected, there is little point in not paying. Also paying removes the risk that you do not hear when Merseyflow reject your representation and you thus end up with more expense, more time wasted and more aggravation.
If you receive a Penalty Charge Notice but for some reason you are past the 28 days limit and you have neither paid nor made a representation, then you maight want to do nothing till the Recovery Order stage when you have the opportunity to make a TE9 application to the Traffic Enforcement Centre (see our Recovery Orders page), that will take the whole process back to square one. The problem is that you may not be aware that the Recovery Order has been issued. So we suggest that even though you are past the 28 days, you either try to pay the £42 or try to make a representation.
Back to top
Allowed grounds
There are very limited grounds for making a representation.
The grounds are detailed at Regulation 8 (3) The Road User Charging Schemes (Penalty Charges, Adjudication and Enforcement) (England) Regulations 2013.
In summary the grounds that might conceivably apply to you are-
You were not the registered keeper of the vehicle at the time of the crossing.
The vehicle was being driven without the permission of the registered keeper, e.g. stolen.
The toll had been paid in full by the required time.
No toll was payable due to a current registered exemption of the driver or the vehicle.
There has been a 'procedural impropriety on the part of the charging authority'.
Back to top
There are two ways of making a 'representation'. You can either do it in 'writing' or use the online system.
How to do it using the online system

The rest of this guide is based on making the representation online. Note that if you are
making a representation on more than one ground, then there is no facility for doing
this online, but we suggest below how you can get round this.
With your PCN handy go to this Merseyflow web page. Then click on 'next'.
The 'What you will need' screen, refers to 'supporting evidence'. If you are
appealing on the grounds of 'procedural impropriety' then you do not need any at
this stage. Click on 'Next'.
On next page, 'Penalty Charge Notice', enter the PCN number and the vehicle
registration number (on your PCN). Then click on 'Next'.
(You used to be shown a list of all outstanding PCNs and you could then select all of them for the representation, but around the start of June 2019, Merseyflow changed the system so you have to through this process separately for each PCN).
On next page, 'Your details', enter Your name and other personal details. All the
fields are mandatory, if you don't have an email address then use a friend's. You
can use the same number in both the phone fields. Then click on 'Next'.
On next page, 'Grounds', click next to the Grounds for your representation.
Despite the decision of the judge, we still believe that the tolls and penalties do not properly comply with the law and are not enforceable. So we therefore still suggest that you use the procedural impropriety ground whatever other grounds you may have.
You then need to click on the bottom box which says 'The option I have selected...'. Then click on 'Next'.
On next page, 'Supporting evidence', you can upload a file - if you have one, and
you can make a 'supporting evidence statement'.
We used to suggest that you upload our evidence docs, or copy and paste a link to them, but don't bother as they will be ignored.
If you are using the 'Procedural impropriety' ground then just type: "There is no toll or penalty payable. The Tolling, the Charging Orders and the PCNs do not comply with the law."
If you have some other reasons or grounds why you think that the penalty is wrong, then add that in the same box. Then click on 'Next'.
On next page, 'Verification', check what you have entered. You also need to click
again on 'The option I have selected...'. Then click on 'Next'.
The next page is a 'Confirmation' page. They do not send email acknowledgements or even provide a reference number. The page does not show a reference number, but you may wish to save a screen-shot of this page. The essential thing is that you keep a careful note (such as on the PCN) of the date that you submitted the representation.

Back to top
How to do it in "writing"
Do this by either writing or printing a letter or by filling in the tear off 'Representation slip' on the back of the PCN. This could either be delivered by hand to the Merseyflow office or posted. You may wish to do this by registered post, but the only essential thing is that you keep a careful note (such as on the PCN) of the date that you did posted or delivered this.
You could also 'write' to them by putting it in an email to - info@merseyflow.co.uk .
We used to suggest that whatever other grounds you may have for challenging the PCN, you made sure to include "G - Procedural impropriety". Following the decision of the judge, that will not have any effect, but we suggest that you do it anyway, in case what the judge said is somehow overturned.
Back to top
What happens next?
Merseyflow must respond to your representation within 56 days (that's eight weeks) of when you make it. They will do one of three things-
It is most likely that they will send you a 'Notice of Rejection'.
Our advice used to be to appeal this to the Traffic Penalty Tribunal STAGE TWO - Making An Appeal Online To Traffic Penalty Tribunal.
Those who think that they have a strong case may still want to do this, but for most people an appeal will be a waste of time.
If when you made the representation you were within the 14 day window, then the Notice of Rejection should say that you can still pay at the £20 rate, and give you a fresh 14 days to make the payment. Otherwise you will have to pay at the £40 rate.
As well as sending you a Notice of Rejection they may also make you an offer to forget about the penalty providing you pay the £2 toll. At one stage they were doing that in most cases, but this is now rare.
They may tell you that they are cancelling the PCN. There is no penalty to pay, and no toll unless you have already paid it. Following the judge's decision this is now unlikely to happen as they can pretty much do what they like with impunity.
Back to top
What a PCN looks like on front and back (this is from 2019, they have changed it since then to try and comply with the law))
Back to top